BI-91
-
data
-
Vue Sud
-
Vue Nord
-
vue sud-ouest
-
façade sud-est
-
façade sud-est
-
vue du salon
-
Vue de l'entrée
-
Vue de la passerelle
-
chantier, Aout 2015
-
chantier, Septembre 2015
-
chantier, Aout 2015
-
montage des murs périphériques
-
montage des murs périphériques
-
montage des murs périphériques
-
le terrain en pente, état initial.
-
plan cadastral
-
élévation sud-est
-
élévation nord-est
-
élévation sud-ouest
-
plan niveau jardin, phase projet
-
plan étage, phase projet
-
coupe longitudinale, phase execution
-
coupe transversale, phase execution
-
plan de toiture, phase execution
-
plan étage, phase execution
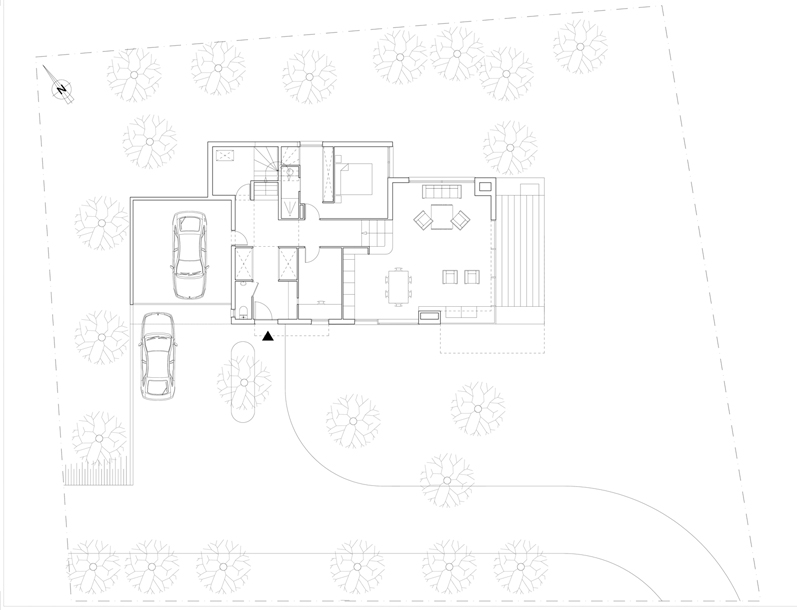
-
plan niveau jardin, phase execution
